Hotel Arkadi in Chania, Crete

Design: 2018 • Area: 2000 sqm (70 rooms) • Services: Preliminary, Outline and Detail Architectural Design for the renovation of the facade, Interior Design (Concept, Outline, Detail Design) & Author Supervision • Sector: Tourism/ Leisure• Photography: George Anastasakis

The project refers to the renovation of Hotel Arkadi, a 3* hotel situated in the heart of the city of Chania. The design aims to reintroduce the aged hotel to the public and its returning customers by revamping the hotel’s façade, the entrance, the reception, the restaurant, the communal spaces, the guest rooms, the back of house etc. The concept was to revisit the representation of the artisanals found in local artifacts and to articulate a design vocabulary inspired by the color, the texture, and the “taste” of the Cretan Culture, relinking the hotel to the city and the experience of the visitor to the place. Ultimately, the design delivers an environment of comfort and elegant luxury which is aligned with the experience of travelling in Crete.

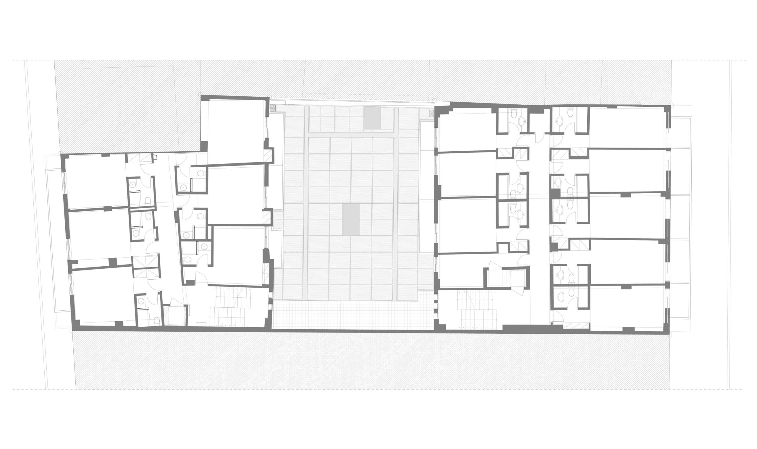
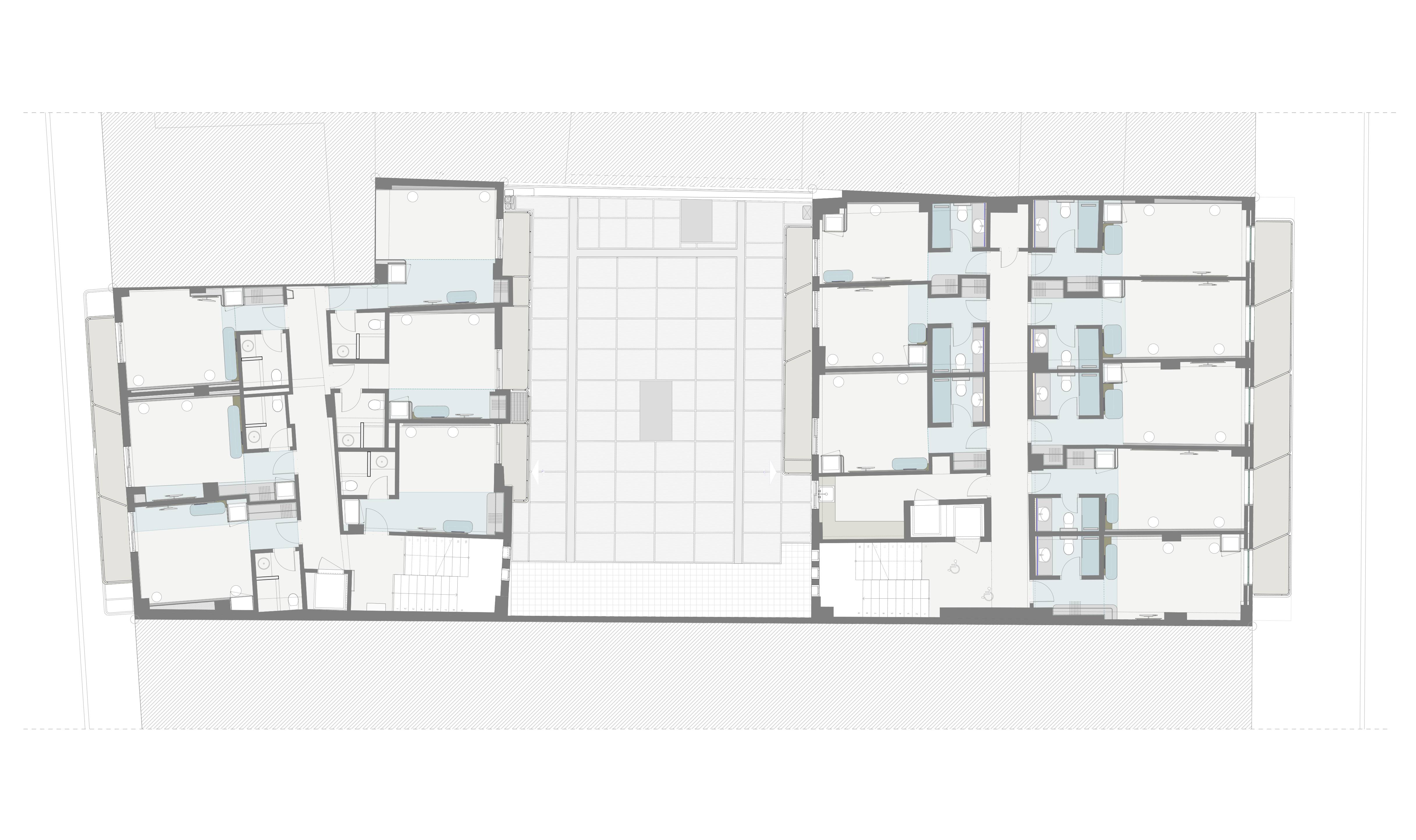
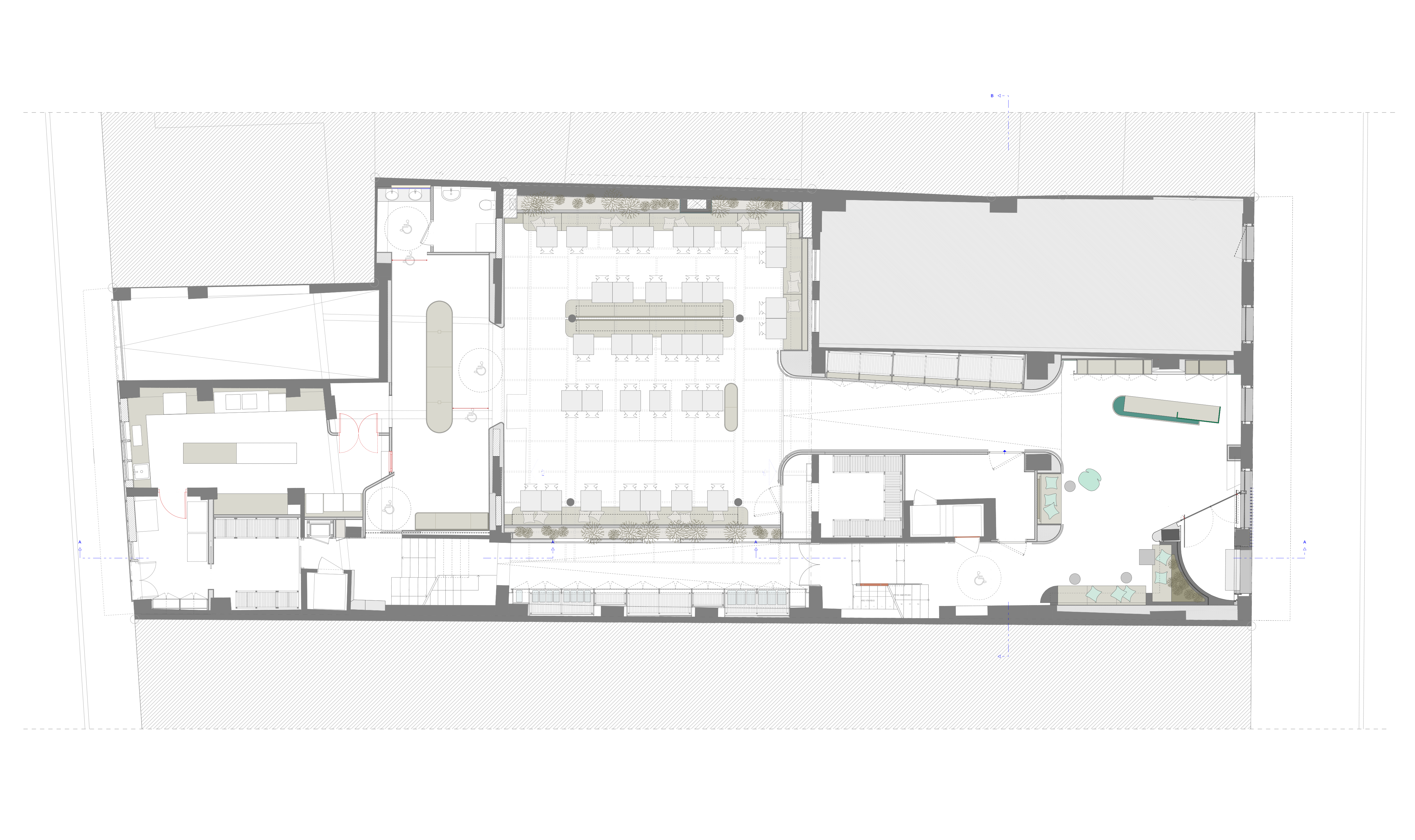
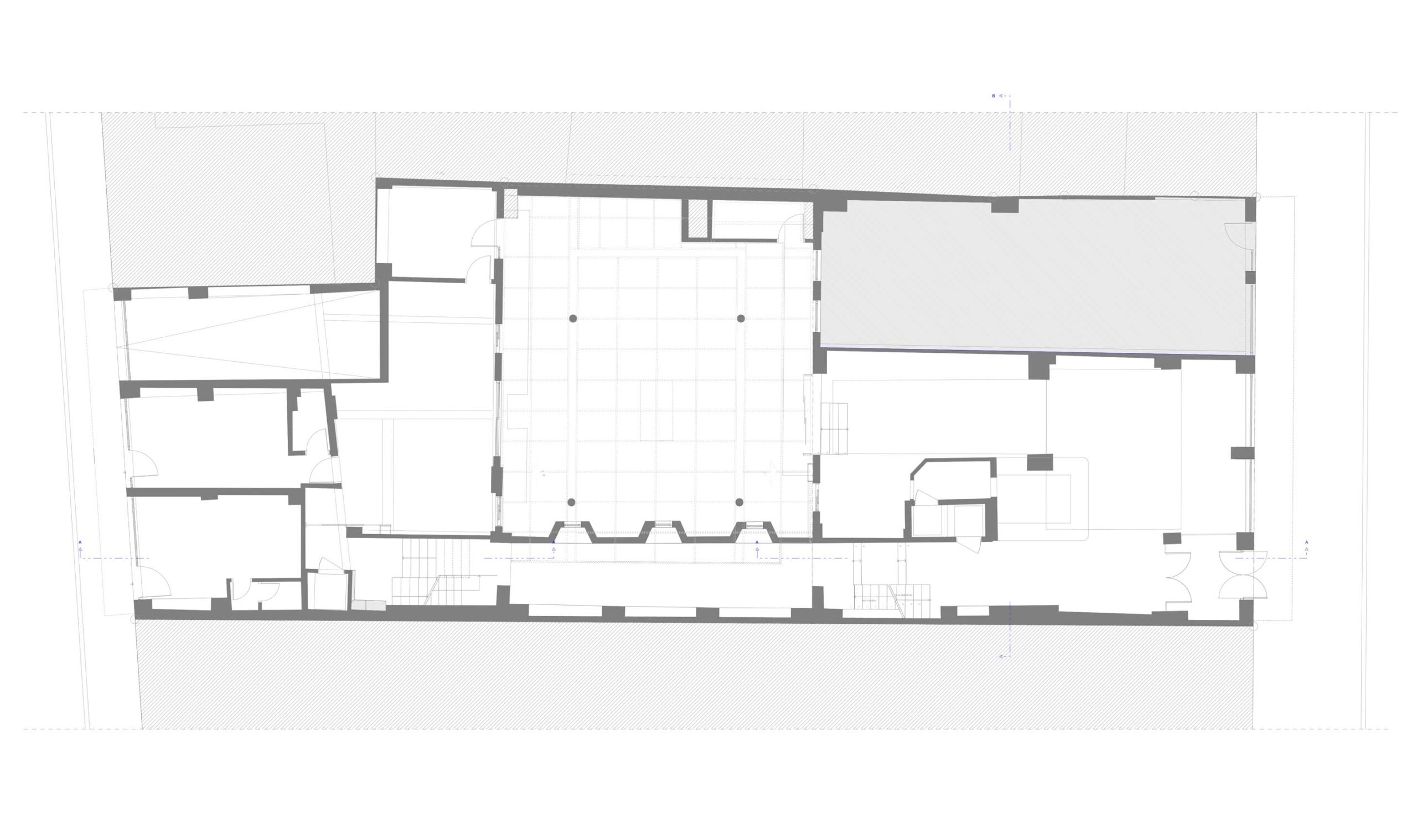
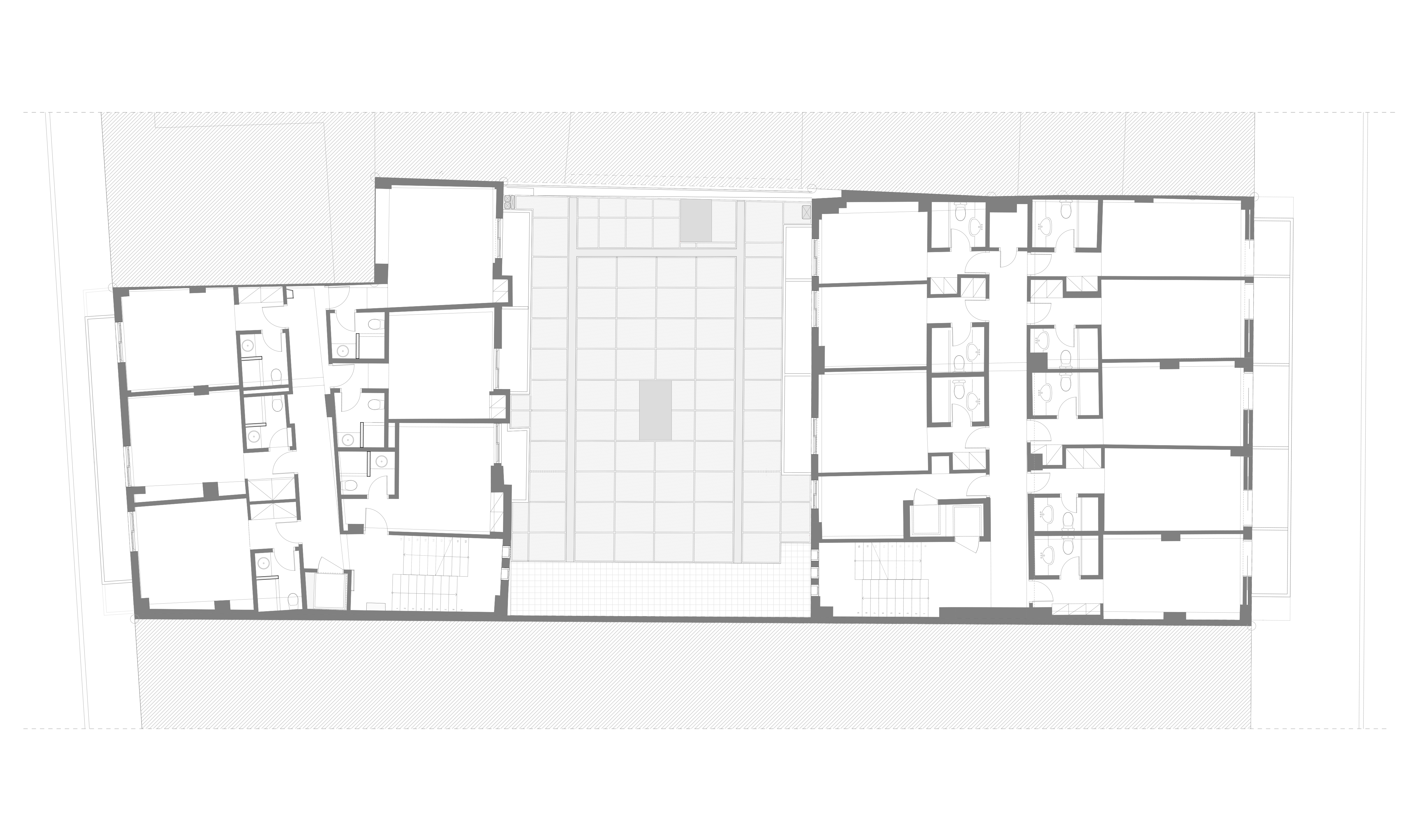
Groundfloor Floorplan | Proposal
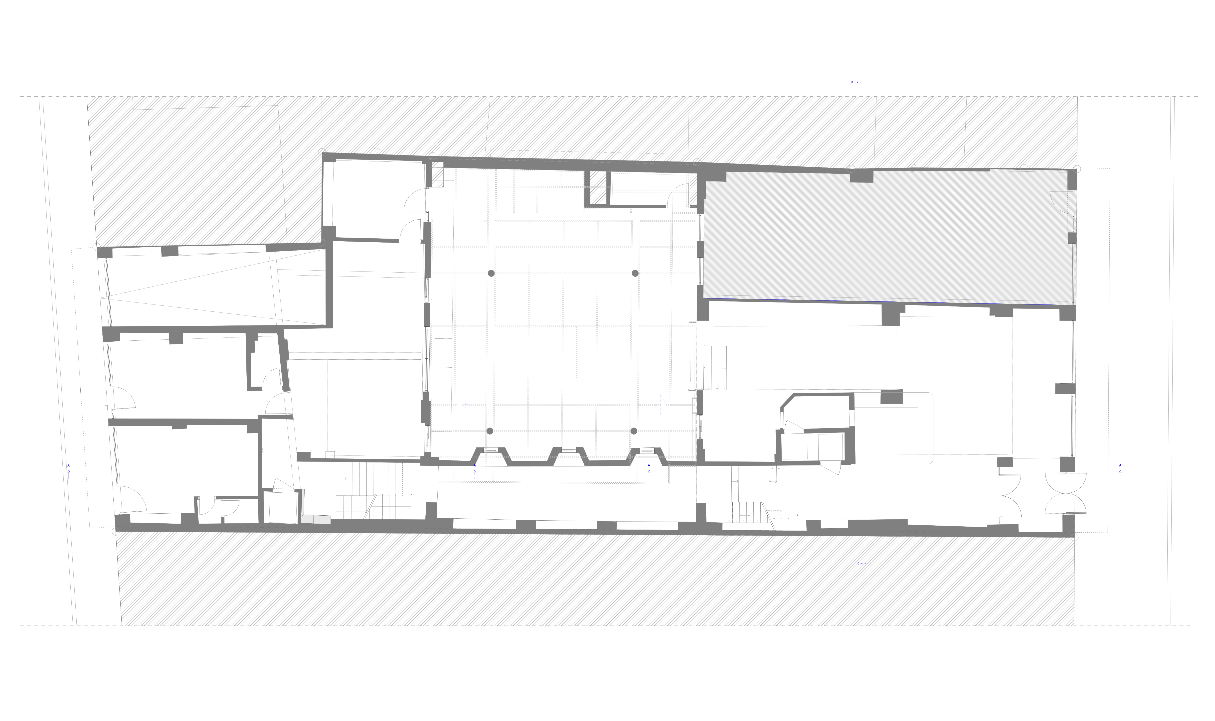
Section 1-1 | Proposal
Typical Room- Interior Elevations

Architectural Design: AVW Architecture • Authors: Angeliki Athanasiadou, Katerina Vassilakou • Architectural Design Team: Natalia Grammatikou, Mara Petra, Angeliki Zerva, Annita Klemmou, Aristea Talagani, Ismini Ziouva